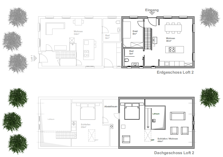
Das offene Wohnkonzept bietet im Erdgeschoss einen großzügigen Koch- und Essbereich mit Kochinsel und Kaminofen. Ebenfalls befindet sich im Erdgeschoss ein Gästezimmer mit zwei Schlafplätzen und das Bad und bietet somit die Möglichkeit einer gewissen Barrierefreiheit.
Die Galerie im Dachgeschoss verfügt über einen Schlafbereich für zwei Personen und einen gemütlichen Wohnbereich mit TV als Rückzugsort.
Zimmer / Ausstattung / Sonstiges:
Schlafzimmer – Schlafgalerie 1 Doppelbett , Wohnzimmer, Gästezimmer mit Ausziehbarem Bett für 2 Personen, Küchenbereich, Walk in Dusche, Garten, Parkplatz, Nichtraucher, Tiere erlaubt, Kochinsel mit Induktionskochfeld und Backofen, Spül- und Kaffeemaschine, komplett mit Geschirr und Besteck, Fußbodenheizung im Bad, WLAN Internet, SAT-TV.

